|
|
單位隸屬種別:防爆型自然氣、乙炔氣電加熱器 |
[封閉本頁] |
防燃電煮沸器 |
都是種用做防爆型型設備娛樂場所的以耗損動能轉變為風能來對用高溫貨位暫停高溫的,是在電高溫器的基礎上再的改進而完成的其中另外一種防爆型型設備轉配。它不是我司在接受國.際外進步作文老員工技藝的基礎上,科研出的其中另外一種發展節能環保更高效、一種新型安全、能市場機制冷藏風能的防爆型型設備房產爐 |
|

|
防爆電加熱器
界說:是一種用于防爆場所的以耗損電能轉換為熱能來對需加熱物料停止加熱的,是在電加熱器的根本上再改良而取得的一種防爆裝配。它是我司在接收國際外進步前輩手藝的根本上,研制出來的一種節能高效、新型寧靜、能供給低溫熱能的防爆產業爐。
任務道理:在任務中低溫流體介質經由過程管道在壓力感化下進入其輸出口,沿著電加熱容器外部特定換熱流道,應用流體熱力學道理設想的途徑,帶走電熱元件任務中所發生的低溫熱能量,使被加熱介質溫度降低而終究到達加熱目標這一道理。
特色:
1、 產物具備體積小、分量輕、布局松散、裝置操縱簡潔。
2、 產物加熱時無凈化,能在較低的任務壓力下取得較高的任務溫度。
3、 接納進步前輩的主動控溫形式,主動化水平高;
4、 接納進步前輩的節制手藝,控溫精度可到達±1℃~±0.1℃;
5、 產物備有多個聯鎖接口,隨時行有用的監控;
6、 具備超溫報警體系,保證體系的寧靜運轉。
7、 接納內熱式閉路輪回供熱,熱操縱率高。
8、 節能結果明顯,運轉用度低且收受接管投資快。
|
|
|

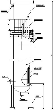
說明圖 | |
|
|
|
|
|